Zinsser Hörsaal, Leibniz Universität Hannover
Der im Gebäude 4201 befindliche Hörsaal C050, der sogenannte "Zinsser Hörsaal" der Fakultät für Architektur und Landschaft wurde in den Semesterferien 2008 umgebaut und saniert.
Die Sanierung erfolgte unter Beibehaltung, bzw. Wiederherstellung, der wesentlichen Gestaltungselemente.
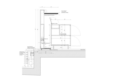
Erneuert wurden die akustischen Deckensegel mit integrierter Beleuchtung (Lichtplanung Prof. Bartenbach), die Bodenbeläge und Bestuhlung sowie die holzverkleidete Bühne mit wandfüllender Projektions- und Tafelfläche. Die neuen variablen Vortragsmöbel aus schwarz durgefärbter MDF-Platte können über eingelegte Schienen auf der Bühne verfahren werden.
Die Material- und Farbgestaltung beschränkt sich auf schwarze, graue, weiße Oberflächen – ergänzt um die vorhandenen rötlichen Holzpaneele, die Bühnenbekleidung und die Bestuhlung.
Bauherr: Land Niedersachsen vertreten durch Staatliches Baumanagement Hannover, für die Leibniz Universität Hannover
Bauzeit: 2008
LPH: 2 – 8
Baukosten: 280.000 €



