Hallenbad Misburg
Architektenwettbewerb 1. Preis
BDA-Preis Niedersachsen
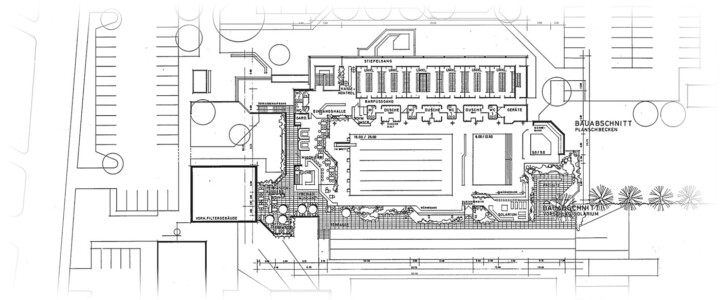
Das Hallenbad ist auf zwei Ebenen organisiert: Erdgeschoss mit Zugang, Sauna, Becken und Technik; Hallengeschoss niveaugleich mit vorhandener Freibadtribüne. Dadurch ergibt sich die Verknüpfung mit Freibad und Milchbar.
Zitat Jury BDA-Preis: „Das Hallenbad ist im Ganzen, wie in den Einzelheiten zurückhaltend, unaufdringlich, zweckmäßig, entbehrt jedoch nicht einer frischen Liebenswürdigkeit.“
Bauherr: Stadt Misburg
Bauzeit: 1973 – 1974
LPH: 2 – 8
Baukosten: k.A.



